1
/
of
9
cozyhus.is
Garden house 40008
Garden house 40008
Regular price
717.000 ISK
Regular price
Sale price
717.000 ISK
Unit price
/
per
Tax included.
Couldn't load pickup availability
Garden house 40008 description
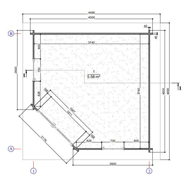
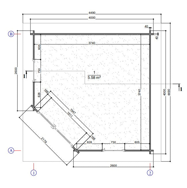
Wall thickness 40 mm
Plank dimensions 400 x 400 cm
External wall dimensions 382 x 382 cm
Canopy approx. 25 cm
Side wall height approx. 215 cm
Total height approx. 310 cm
Floor area approx. 14.50 sqm
Cubic content 33.4 m3
Roof area approx. 21.90 sqm
Glued wood double door 156 x 187 cm
Window 73 x 143 cm
Included
Solid wood roof 18 mm
Real glass glazing ✓
high-quality laminated wood door ✓
Stainless steel door sill with easy access ✓
Window with turn/tilt fitting ✓
Cylinder lock and handle set ✓
Roof hood ✓
Mounting material ✓
Detailed assembly instructions ✓
Supplied in natural without color treatment ✓
Please note that the foundation beams are only included if you order including the floor
Share
