1
/
of
9
cozyhus.is
Garden house 28017
Garden house 28017
Regular price
550.000 ISK
Regular price
Sale price
550.000 ISK
Unit price
/
per
Tax included.
Couldn't load pickup availability
Garden house description:
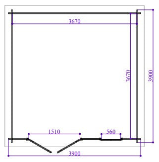
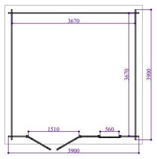
Wall thickness 28 mm
Plank dimensions 390 x 390 cm
External wall dimensions 372 x 372 cm
Canopy about 20 cm
Side wall height approx. 200 cm
Total height approx. 250 cm
Floor area approx. 13.84 sqm
cubic content 29.83 m3
Roof area approx. 17.72 sqm
Double door 156 x 187 cm
Window 63 x 77 cm
Included:
Solid wood roof 15 mm
Real glass glazing ✓
Stainless steel door sill with easy access ✓
Window fixed ✓
Cylinder lock and handle set ✓
mounting material ✓
incl. storm strips for wind protection ✓
detailed assembly instructions ✓
Supplied in natural without color treatment ✓
Share
